“L’Écrin Discret”
Le projet “L’Écrin Discret” propose la réhabilitation et la restructuration d’un bâtiment industriel datant du début du XVIIIe siècle, situé dans le XVème arrondissement de Paris, en bureaux de consultation pour un couple de médecins spécialisés en chirurgie esthétique. Anciennement situés sur la prestigieuse place de la Concorde, ces praticiens souhaitent un espace à la fois fonctionnel, raffiné et confidentiel, en adéquation avec les attentes d’une clientèle exclusive. L’architecture du projet s’inscrit dans une démarche respectueuse de l’histoire du lieu tout en intégrant des interventions contemporaines.
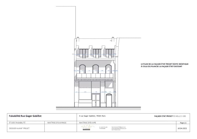
La façade avant, avec ses pierres d’origine et ses ferronneries traditionnelles, sera minutieusement restaurée afin de conserver l’authenticité et le caractère patrimonial du bâtiment. Ce choix souligne l’importance de préserver l’identité architecturale dans un quartier chargé d’histoire. À l’arrière, une grande verrière sera installée pour ouvrir les espaces intérieurs sur un jardin paysager, baignant les bureaux de lumière naturelle et créant un contraste subtil entre la robustesse de l’architecture industrielle et la légèreté des interventions modernes. Cette verrière, conçue dans une structure en métal noir et verre clair, devient un symbole d’équilibre entre passé et présent.
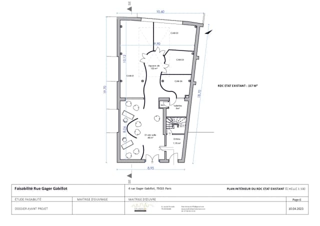
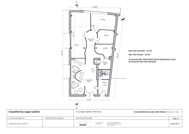
L’organisation intérieure du bâtiment repose sur deux niveaux dédiés aux consultations et à des espaces annexes. Au rez-de-chaussée, un accueil chaleureux introduit les visiteurs dans un univers feutré. L’utilisation de bois sombre pour le mobilier intégré et les murs, combinée à des éclairages indirects soigneusement placés, confère à cet espace une atmosphère intimiste et élégante. Les lumières flottantes, dissimulées dans des corniches ou suspendues à des hauteurs variables, jouent avec les volumes et les textures, créant une scénographie lumineuse qui renforce le sentiment de discrétion et de sérénité. Les salles de consultation, organisées autour d’un parcours fluide, sont conçues pour offrir à la fois confort et confidentialité, grâce à des matériaux absorbants et à une acoustique soigneusement étudiée.
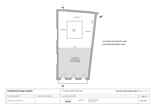
Le premier étage abrite les bureaux privés des médecins, des salles de réunion et des zones de détente pour le personnel. Ces espaces bénéficient également de la lumière naturelle apportée par la verrière, offrant des vues dégagées sur le jardin. Le bois clair et les touches de métal noir structurent les volumes et apportent une sensation de chaleur et de sobriété, en harmonie avec l’ensemble du bâtiment. Les luminaires, conçus sur mesure, viennent compléter l’esthétique en ajoutant des accents contemporains tout en respectant l’élégance intemporelle du lieu.
La matérialité joue un rôle central dans la transformation du bâtiment. Le bois, omniprésent dans les aménagements intérieurs, se marie aux pierres apparentes soigneusement restaurées et aux éléments métalliques rappelant le passé industriel du lieu. Les murs peints en teintes neutres servent de toile de fond pour les éclairages indirects, accentuant la profondeur et le raffinement des espaces. Ce mariage de matériaux nobles et de lumières subtiles traduit une volonté d’offrir à la clientèle une expérience à la fois luxueuse et discrète.
En termes de durabilité, le projet intègre des solutions respectueuses de l’environnement. Les fenêtres à double vitrage de la verrière optimisent l’isolation thermique et acoustique, tandis que l’utilisation de bois certifié FSC et de peintures écologiques garantit un impact réduit sur l’environnement. La ventilation naturelle, facilitée par les ouvertures stratégiquement placées, et l’intégration d’un éclairage LED basse consommation témoignent d’une démarche écoresponsable.
“L’Écrin Discret” transcende la simple réhabilitation pour devenir un dialogue subtil entre patrimoine et modernité. Ce projet incarne une architecture pensée pour respecter l’histoire tout en répondant aux exigences contemporaines d’un lieu de travail dédié à l’excellence médicale. Par ses espaces raffinés et intimistes, ses matériaux soigneusement choisis et son jeu subtil de lumières, ce bâtiment réhabilité devient un havre de sérénité et de discrétion, en parfaite adéquation avec la clientèle qu’il accueillera.
1 : Analyse contextuelle et respect du patrimoine
• Conservation de la façade d’origine :
L’avant du bâtiment garde son caractère historique avec ses pierres apparentes et ses ferronneries traditionnelles, restaurées dans les règles de l’art. L’identité industrielle et robuste du lieu est préservée, rappelant son origine du XVIIIe siècle.
• Dialogue entre histoire et modernité :
Une grande verrière contemporaine est installée à l’arrière du bâtiment, symbolisant l’ouverture et la transformation. Elle permet une connexion visuelle entre l’intérieur et l’extérieur, baignant les espaces de lumière naturelle tout en apportant une touche de modernité subtile.
2 : Organisation fonctionnelle
Rez-de-chaussée : Accueil et espaces de consultation
• Hall d’entrée :
Dès l’entrée, un jeu subtil de bois sombre et d’éclairages indirects crée une ambiance feutrée et intimiste, en harmonie avec les attentes d’une clientèle de prestige. Des banquettes intégrées en bois et tissus accueillent les patients dans un cadre raffiné.
• Espaces de consultation :
Les cabinets de consultation, situés à ce niveau, sont conçus pour offrir une confidentialité maximale. Les cloisons en bois, associées à des finitions en verre mat rétroéclairé, favorisent une atmosphère apaisante et confortable.
• Circulations :
Les couloirs et espaces de transition sont fluides, guidant discrètement les patients vers les différentes zones du rez-de-chaussée. Les matériaux et les jeux de lumière accentuent la douceur de ces espaces.
Premier étage : Espaces privés et techniques
• Bureaux des médecins :
Situés au premier étage, ces bureaux offrent un cadre professionnel mais chaleureux, alliant élégance et discrétion. Le bois clair des mobiliers intégrés et les teintes neutres des murs sont rehaussés par des éclairages indirects qui flottent, créant une ambiance lumineuse et douce. De grandes bibliothèques murales en bois accueillent des ouvrages et objets personnels, humanisant l’espace de travail.
• Salles techniques et supports :
Ce niveau abrite également des espaces de stockage et des zones techniques pour les équipements médicaux. Ces salles, fonctionnelles et discrètes, sont dissimulées derrière des panneaux en bois coulissants, intégrés dans la conception globale.
• Espace de détente pour le personnel :
Une petite salle est aménagée pour les pauses des médecins et du personnel administratif. Dotée d’un mobilier ergonomique et d’un éclairage tamisé, elle offre une vue sur la verrière et le jardin extérieur.
3 : La lumière comme élément central
• Éclairages indirects :
L’ensemble du bâtiment est conçu pour exploiter des jeux de lumière flottante, qui semblent suspendus dans l’air. Ces éclairages, intégrés dans les murs, les plafonds et le mobilier, créent une ambiance apaisante et intimiste, essentielle pour un lieu accueillant une clientèle exigeante.
• Luminaires sculpturaux :
Des luminaires sur-mesure, en verre soufflé ou en métal texturé, ponctuent les espaces, ajoutant une dimension artistique au projet. Ces éléments décoratifs et fonctionnels s’intègrent harmonieusement dans le design minimaliste.
• Verrière à l’arrière :
La grande verrière, pièce maîtresse du projet, inonde les espaces de lumière naturelle. Sa structure métallique noire rappelle le caractère industriel d’origine, tandis que ses panneaux vitrés offrent une vue directe sur un jardin apaisant. Ce lien entre l’intérieur et l’extérieur participe à l’expérience sensorielle du lieu.
4 : Ambiance intérieure et matérialité
• Matériaux nobles et naturels :
Le bois est omniprésent, utilisé pour les cloisons, le mobilier sur-mesure, et certains détails muraux. Il est associé à des éléments en métal noir et verre dépoli pour créer un contraste subtil entre chaleur et modernité. Les sols en pierre naturelle ou en parquet clair renforcent l’élégance et la sobriété de l’ensemble.
• Textures et finitions :
Les murs intérieurs alternent entre surfaces lisses peintes en tons neutres et panneaux de bois texturé. Ces contrastes visuels et tactiles participent à une atmosphère accueillante et confidentielle.
• Acoustique optimisée :
Les matériaux absorbants, tels que les panneaux en bois perforé et les textiles d’ameublement, assurent une acoustique parfaite, essentielle dans un lieu dédié à la consultation médicale.
5 : Approche environnementale et confort
• Conception bioclimatique :
La verrière joue un rôle central dans la régulation thermique du bâtiment, captant la chaleur naturelle en hiver et laissant circuler l’air en été grâce à des ouvertures stratégiques.
• Matériaux durables :
Les matériaux utilisés, comme le bois certifié FSC et les peintures écologiques, témoignent d’une démarche respectueuse de l’environnement.
• Éclairage LED :
Tous les luminaires sont équipés de LED à basse consommation, garantissant une efficacité énergétique sans compromettre l’ambiance lumineuse.
• Ventilation naturelle :
Des systèmes de ventilation discrètement intégrés assurent un renouvellement constant de l’air, renforçant le confort et le bien-être des occupants.
6 : Contexte et intégration urbaine
• Préservation du patrimoine :
La façade avant, conservée et restaurée, continue de s’inscrire harmonieusement dans le tissu urbain historique du XVème arrondissement. Les détails d’origine, tels que les corniches et les ferronneries, sont sublimés par un travail artisanal de qualité.
• Lien avec le quartier :
L’intégration discrète de la verrière et des nouveaux aménagements préserve l’équilibre entre l’histoire du bâtiment et son environnement. Le projet s’inscrit dans une dynamique de réhabilitation urbaine en valorisant un patrimoine existant tout en répondant aux exigences contemporaines.
Conclusion
“L’Alchimie des Lumières” incarne la rencontre entre passé et modernité. En réhabilitant un bâtiment industriel du XVIIIe siècle, ce projet offre une nouvelle vie à un édifice historique tout en répondant aux besoins d’un couple de médecins spécialistes en chirurgie esthétique. Grâce à une conception soignée et une attention particulière portée aux matériaux, aux lumières et aux volumes, cet espace devient à la fois un lieu de travail fonctionnel et un écrin intime et élégant, parfaitement adapté à sa clientèle exigeante.





































