“Le Pavillon en Harmonie de Montévrain”
“Le Pavillon en Harmonie de Montévrain” est une maison en structure bois économique de 80 m², conçue pour un couple avec un enfant, et située sur la commune de Montévrain en Seine-et-Marne. Ancrée dans un cadre naturel entouré de forêt et d’une grande étendue d’eau, cette maison s’inscrit dans une démarche de contextualisme architectural et sémiologique, en établissant un dialogue respectueux entre l’architecture et son environnement. Conçue par Studio HB, cette maison privilégie une esthétique minimaliste et naturelle, avec un bardage horizontal en bois, un toit à pente légère, et des espaces optimisés pour une vie familiale confortable et fonctionnelle.
Le Pavillon en Harmonie de Montévrain se présente comme une œuvre architecturale subtile, fusionnant avec un cadre naturel idyllique entre forêt et étendue d’eau. Conçue par Studio HB pour une famille composée d’un couple et de leur enfant, cette maison en bois structurel de 80 m² dépasse les simples notions de fonctionnalité pour offrir une esthétique minimaliste profondément enracinée dans son environnement. En utilisant un bardage horizontal, des ouvertures généreuses et un toit à pente légère qui rappelle une toiture terrasse, ce projet traduit une quête d’équilibre entre durabilité, économie et poésie architecturale. Loin des excès, cette réalisation explore une architecture résidentielle accessible et respectueuse, où la structure en bois, associée à des matériaux locaux, répond à une exigence écologique tout en valorisant un environnement naturel préservé.
Le terrain, bordé par une dense forêt et une étendue d’eau, impose une architecture discrète et attentive. Le pavillon s’intègre avec délicatesse, captant la lumière naturelle et encadrant des vues apaisantes à travers de larges baies vitrées. Sa volumétrie modeste et son bardage en bois aux teintes douces lui permettent de se fondre dans le paysage, tout en maximisant l’ensoleillement et en préservant l’intimité intérieure. Organisée sur deux niveaux, la maison s’articule autour de lignes simples et d’espaces lumineux. Au rez-de-chaussée, les espaces de vie décloisonnés — salon, salle à manger et cuisine ouverte — offrent une continuité visuelle et spatiale avec l’extérieur, grâce à des baies vitrées coulissantes qui prolongent l’espace vers une terrasse en bois. À l’étage, deux chambres lumineuses et une salle de bain commune illustrent une intimité chaleureuse et épurée, où les matériaux naturels créent une ambiance apaisante.
Le projet met en avant une approche sémiologique où la maison ne domine pas son environnement mais s’y intègre, utilisant des matériaux nobles et une volumétrie adaptée au site. Les ouvertures généreuses et la relation fluide entre intérieur et extérieur permettent aux habitants de vivre en harmonie avec les saisons, tandis que la simplicité des lignes et des proportions traduit une esthétique universelle et intemporelle. La maison respecte son contexte en choisissant des matériaux locaux et écologiques, tels que le bois certifié FSC et l’isolation en laine de bois, garantissant un confort thermique optimal et une empreinte environnementale réduite. Construit selon des techniques de filière sèche, le pavillon combine efficacité énergétique, coûts maîtrisés et rapidité d’exécution, tout en offrant une qualité irréprochable.
Les espaces extérieurs sont une extension naturelle de l’architecture. Une terrasse en bois à l’arrière de la maison invite à la contemplation et à la détente face à l’étendue d’eau, tandis que le jardin préserve la végétation existante pour minimiser l’impact sur l’écosystème local. Un chemin en gravier discret mène à l’entrée, renforçant la sobriété et l’intégration du projet dans le site. Ancré dans un territoire semi-rural où la nature impose ses règles, Le Pavillon en Harmonie de Montévrain reflète la richesse et la sérénité de son cadre, tout en répondant aux besoins modernes d’une jeune famille.
Cette maison est bien plus qu’un lieu de vie fonctionnel ; elle est une célébration de l’essentiel. En alliant poésie architecturale, fonctionnalité contemporaine et respect écologique, elle transforme l’idée de refuge en une expérience harmonieuse où la simplicité devient un luxe. Ses lignes épurées, son bardage en bois chaleureux et son toit à pente discrète en font un modèle d’architecture à échelle humaine, durable et profondément ancrée dans son environnement naturel.
Type d’Information
Architecture Résidentielle Économique et Durable : Le projet explore l’utilisation de matériaux économiques et écologiques pour concevoir un pavillon accessible, tout en valorisant le lien avec la nature environnante.
Détails du Projet
1. Analyse contextuelle et insertion spatiale
• Environnement naturel :
• Le terrain se trouve dans un cadre exceptionnel, entouré de forêt et d’une grande étendue d’eau. L’architecture tire parti de cet environnement en intégrant des ouvertures généreuses pour maximiser les vues et la lumière naturelle.
• Insertion dans le site :
• Le pavillon s’intègre discrètement dans le paysage grâce à sa structure légère et son bardage en bois, qui reprend les tons naturels de la forêt.
• La maison est orientée pour bénéficier d’un ensoleillement optimal tout en préservant l’intimité des espaces intérieurs.
2. Expression architecturale
• Volumétrie et proportions :
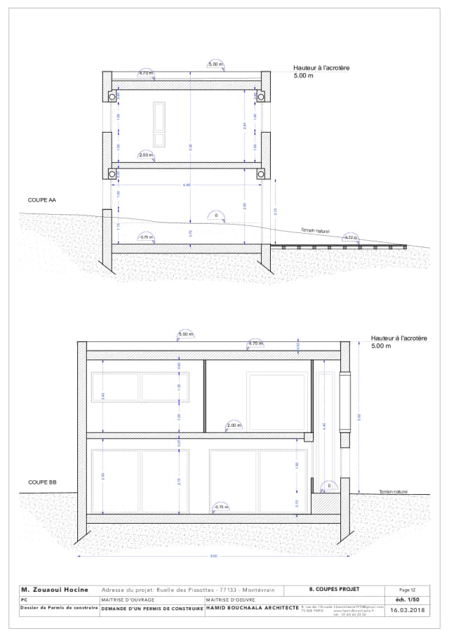
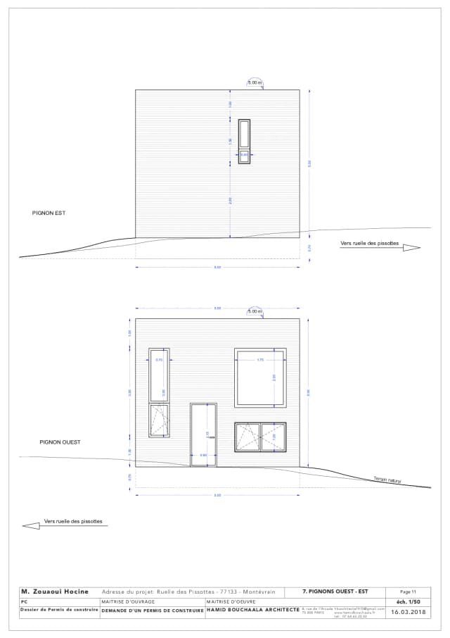
• La maison se compose de volumes simples et épurés, répartis sur deux niveaux.
• Le toit à pente légère évoque une toiture terrasse lorsqu’elle est vue de l’extérieur, offrant une silhouette discrète et contemporaine.
• Matériaux et textures :
• Bois structurel : Utilisé pour la charpente et la structure, assurant légèreté et économie de matériaux.
• Bardage horizontal en bois : Apporte une chaleur visuelle et s’harmonise avec le paysage forestier.
• Menuiseries en aluminium noir : Encadrent les ouvertures pour un contraste moderne et épuré.
3. Organisation fonctionnelle
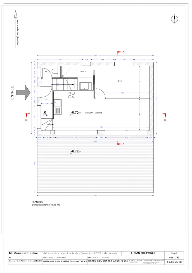
• Rez-de-chaussée : Espaces de vie
• Salon, salle à manger et séjour :
• Un espace ouvert et lumineux, orienté vers la forêt et l’étendue d’eau grâce à de larges baies vitrées coulissantes.
• Le choix du mobilier et des finitions privilégie la simplicité et la fonctionnalité.
• Cuisine ouverte :
• Intégrée dans l’espace de vie, avec un îlot central compact en bois et stratifié, optimisant l’espace.
• WC communs :
• Situés à proximité de l’entrée pour une accessibilité pratique.
• 1er étage : Espaces privés
• Deux chambres :
• Chambres lumineuses et bien isolées, offrant des vues privilégiées sur la nature.
• Rangements intégrés pour maximiser l’espace.
• Salle de bains commune :
• Conçue avec des matériaux simples et durables, tels que le carrelage en céramique et le bois.
4. Approche sémiologique
• Connexion avec la nature :
• Le choix des matériaux naturels, la volumétrie discrète, et les ouvertures généreuses renforcent le lien entre l’intérieur et l’extérieur.
• Simplicité et fonctionnalité :
• Le design minimaliste exprime une esthétique épurée et accessible, en phase avec les besoins d’une jeune famille et les contraintes budgétaires.
• Respect du contexte :
• En utilisant des matériaux et des formes qui dialoguent avec l’environnement naturel, le pavillon s’intègre parfaitement dans le paysage sans perturber son équilibre visuel.
5. Construction et durabilité
• Matériaux locaux et écologiques :
• Bois certifié FSC pour la structure et le bardage.
• Isolation naturelle (laine de bois) pour garantir un confort thermique et acoustique optimal.
• Optimisation énergétique :
• Orientation bioclimatique pour maximiser les apports solaires en hiver et limiter la surchauffe en été.
• Fenêtres à double vitrage haute performance pour une isolation renforcée.
• Coût maîtrisé :
• Utilisation de techniques de construction en filière sèche pour réduire les délais et les coûts de chantier.
6. Espaces extérieurs
• Terrasse en bois :
• Une terrasse aménagée à l’arrière de la maison, offrant un espace de détente et de repas avec vue sur l’étendue d’eau.
• Le bois de la terrasse s’harmonise avec le bardage, créant une continuité visuelle et matérielle.
• Jardin naturel :
• Préservation de la végétation existante pour minimiser l’impact sur l’écosystème local.
• Intégration d’un chemin en gravier menant à l’entrée principale.
7.Contexte Environnant
1. Montévrain et son environnement naturel :
• Le projet s’inscrit dans un cadre semi-rural, où la forêt et l’eau dictent les choix esthétiques et fonctionnels.
2. Insertion dans le paysage :
• La maison, par son échelle modeste et ses matériaux naturels, préserve l’harmonie du site tout en offrant une réponse moderne et économique aux besoins de ses habitants.
Conclusion
“Le Pavillon en Harmonie de Montévrain” illustre une approche de simplicité fonctionnelle et esthétique, adaptée à une jeune famille désireuse de vivre en connexion avec la nature. Conçu par Studio HB, ce projet mêle respect de l’environnement, économie de moyens, et design contemporain, créant un espace chaleureux et lumineux, parfaitement intégré à son cadre naturel. Avec sa structure en bois, son bardage horizontal, et son toit à pente légère, cette maison incarne une architecture durable et accessible, en parfaite adéquation avec son site unique en Seine-et-Marne.





















