Le Jardin d’Hiver Collaboratif”
Le projet de restructuration de trois niveaux d’un immeuble haussmannien situé dans le XVIIe arrondissement de Paris propose la création d’un centre de coworking destiné à un fonds d’investissement. L’idée directrice de cette transformation s’inspire des jardins d’hiver anglais, où l’élégance intemporelle rencontre une fonctionnalité contemporaine, et trouve son expression architecturale dans l’ambiance feutrée et raffinée des salons de thé. Chaque détail, des ferronneries aux finitions laiton, participe à la création d’un environnement unique, conjuguant tradition et modernité, avec une vue imprenable sur les toits de Paris.
Les espaces s’articulent autour de volumes généreux, illuminés par de grandes ouvertures qui captent la lumière naturelle et mettent en valeur les lignes épurées des ferronneries en métal noir, élément signature du projet. Ces structures fines et légères rythment les espaces en créant des séparations visuelles subtiles entre les zones de travail, les alcôves privées et les espaces collaboratifs. Les cloisons vitrées, encadrées par ces ferronneries, laissent passer la lumière tout en offrant une sensation de fluidité et d’ouverture, rappelant les serres des jardins victoriens.
La palette de couleurs, pensée pour évoquer une atmosphère chaleureuse et apaisante, oscille entre des nuances poudrées de vert sauge, des bleus fumés et des gris doux, ponctuées par des touches de laiton sur le mobilier et les luminaires. Ce choix chromatique dialogue harmonieusement avec le caractère haussmannien de l’immeuble, où moulures et parquets d’origine sont préservés et sublimés par des textures modernes. Le bois massif des tables, le velours des fauteuils et les tapis épais apportent une sensation de confort et de luxe discret, renforcée par un éclairage tamisé.
Les luminaires jouent un rôle central dans la création de l’ambiance : des suspensions en laiton et verre opalin diffusent une lumière douce et diffuse, tandis que des appliques murales aux formes épurées ponctuent les murs dans les espaces communs. Des lampes d’appoint, positionnées sur les tables et dans les alcôves, offrent une luminosité ciblée, parfaite pour le travail individuel. L’éclairage indirect, intégré dans les cloisons vitrées ou dissimulé sous les étagères, renforce l’idée d’un espace intimiste, propice à la réflexion et à la concentration.
Le premier niveau, pensé comme un espace de réception et de convivialité, accueille les visiteurs dans un cadre sophistiqué et chaleureux. Le mobilier, soigneusement sélectionné, allie des matériaux nobles et durables, tels que le bois sombre et le marbre, tandis que les espaces collaboratifs s’organisent autour de grandes tables communes et de canapés confortables. Une bibliothèque intégrée, habillée de ferronneries noires, encadre les murs et devient un élément décoratif majeur, rappelant les étagères des salons de thé anglais.
Le deuxième niveau se concentre sur les espaces de travail, avec une organisation flexible qui répond aux besoins des utilisateurs. Des bureaux privatifs sont aménagés derrière des cloisons vitrées pour assurer intimité et luminosité, tandis que des zones de coworking ouvertes favorisent les échanges et la collaboration. Chaque espace bénéficie d’une vue dégagée sur les toits parisiens, offrant un cadre inspirant et unique.
“Le Jardin d’Hiver Collaboratif”
Introduction au Concept
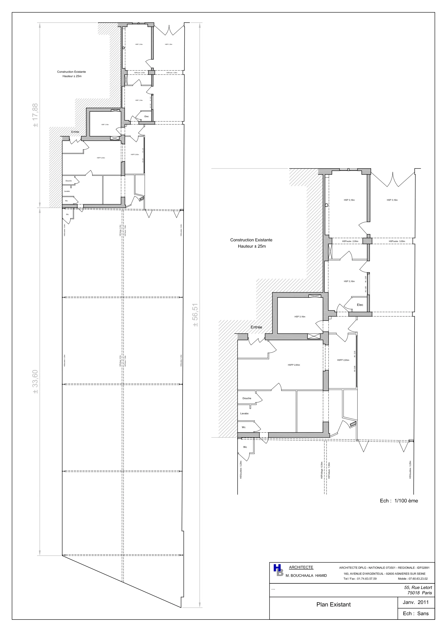
Situé dans un immeuble haussmannien du XVIIe arrondissement de Paris, ce projet propose la restructuration de trois niveaux pour accueillir un centre de coworking dédié à un fonds d’investissement. Inspirée par l’élégance des jardins d’hiver anglais et l’atmosphère feutrée des salons de thé, cette transformation allie fonctionnalité contemporaine et esthétique raffinée. Le concept met en avant une ferronnerie en métal noir et fine, des couleurs chaleureuses, des jeux de lumière subtils, et des éléments en laiton pour créer un espace à la fois luxueux et propice à la réflexion. Les vues sur Paris viennent compléter cette expérience en apportant une ouverture sur l’extérieur.
Analyse Contextuelle et Insertion
L’immeuble haussmannien, emblématique de l’élégance parisienne, offre un cadre prestigieux et intemporel pour ce projet. La structure existante, avec ses hauteurs sous plafond généreuses, ses moulures décoratives et ses grandes fenêtres, est un écrin idéal pour intégrer des éléments contemporains tout en respectant le patrimoine architectural. La façade extérieure est préservée dans son état d’origine, tandis que l’intérieur est repensé pour offrir un dialogue entre tradition et modernité. Les grandes baies vitrées permettent une connexion visuelle constante avec les toits de Paris, renforçant le sentiment d’appartenance à un cadre urbain d’exception.
Expression Architecturale
Le vocabulaire esthétique du projet s’inspire des jardins d’hiver anglais, avec leur structure légère et leur transparence élégante. La ferronnerie en métal noir, travaillée avec des lignes fines et des motifs délicats, devient un élément central du design, évoquant la délicatesse des serres victoriennes. Les teintes choisies pour l’intérieur oscillent entre des tons chauds (terracotta, bordeaux) et des couleurs apaisantes (vert profond, beige clair), renforçant une atmosphère accueillante et raffinée.
Le mobilier, conçu sur mesure, intègre des détails en laiton brossé pour apporter une touche de luxe discret. Les luminaires suspendus, combinant verre opalin et métal doré, diffusent une lumière douce qui rappelle l’ambiance intime des salons de thé. Cette palette matérielle et chromatique est accentuée par des textures riches : velours pour les assises, tapis épais, et bois sombre pour les tables et les étagères.
Organisation Fonctionnelle
Le projet se développe sur trois niveaux, chacun ayant une vocation spécifique tout en partageant une identité esthétique cohérente.
• Rez-de-chaussée :
Le rez-de-chaussée accueille l’espace d’entrée et les zones communes. Un lobby élégant, avec une verrière intérieure inspirée des jardins d’hiver, agit comme un point de rencontre central. Les visiteurs et collaborateurs peuvent se détendre dans un lounge décoré de banquettes en velours et de petites tables circulaires. Une cafétéria, équipée de comptoirs en marbre et de tabourets en laiton, offre un espace convivial pour les pauses.
• Premier étage :
Cet étage est dédié aux espaces de travail collaboratif. Les open spaces sont aménagés avec des cloisons en ferronnerie et verre, offrant une séparation visuelle tout en préservant une grande transparence. Des zones de réunion informelles, avec des fauteuils profonds et des lampes d’appoint, ponctuent l’espace. Un coin bibliothèque, entouré d’étagères en bois sombre et éclairé par des appliques murales, devient un lieu de calme et de concentration.
• Deuxième étage :
Le dernier niveau est réservé aux bureaux privés et aux salles de réunion. Chaque bureau bénéficie d’une vue dégagée sur les toits de Paris, grâce à de larges fenêtres encadrées par des rideaux en lin léger. Les salles de réunion, équipées de tables en bois massif et de chaises tapissées, intègrent des systèmes audiovisuels discrets. Une salle de conférence, située au centre, est surmontée d’une verrière qui inonde l’espace de lumière naturelle.
Ambiance et Lumière
La lumière joue un rôle clé dans le projet, contribuant à créer une ambiance chaleureuse et inspirante. Les luminaires suspendus, combinés à des appliques murales en laiton, diffusent une lumière douce et tamisée, idéale pour le travail et la détente. Les verrières et les grandes fenêtres permettent une entrée généreuse de lumière naturelle, renforçant le lien avec l’extérieur. Des plantes vertes, intégrées dans l’aménagement, apportent une touche vivante et rappellent l’esthétique des jardins d’hiver.
Durabilité et Innovation
Le projet intègre des solutions durables et respectueuses de l’environnement. Les matériaux utilisés, comme le bois certifié FSC et le métal recyclé, garantissent une empreinte écologique réduite. Les systèmes d’éclairage LED et les vitrages à haute performance énergétique permettent de minimiser la consommation d’énergie. Enfin, des systèmes de gestion intelligente, intégrés dans les espaces de travail, offrent une flexibilité d’utilisation et une optimisation des ressources.
Conclusion
“La Bulle Zénithale” est un centre de coworking qui transcende les attentes en combinant fonctionnalité, esthétisme et innovation. En s’inspirant des jardins d’hiver anglais et de l’élégance des salons de thé, ce projet propose un environnement de travail unique et raffiné, où chaque détail, de la ferronnerie délicate au mobilier en laiton, contribue à une expérience inspirante. Niché dans un immeuble haussmannien, il offre un équilibre parfait entre tradition et modernité, renforcé par des vues imprenables sur Paris. Un espace où la collaboration et la créativité trouvent une expression architecturale exceptionnelle.






















