Clair-Obscur Urbain : Une Harmonie Structurelle entre Nature et Ville à Chevilly-Larue
Ce projet de réalisation d’un immeuble de 42 logements à Chevilly-Larue, dans le Val-de-Marne, s’inscrit dans une démarche de contextualisme architectural et sémiologique, où l’environnement naturel et l’intégration urbaine dialoguent dans une harmonie maîtrisée. Situé sur une parcelle d’angle, ce bâtiment de sept niveaux, comprenant deux sous-sols, articule une structure porteuse en béton blanc apparent qui agit comme un squelette sculptural. Les volumes en bois, accueillant les logements, s’insèrent dans cette trame, jouant sur un équilibre subtil entre pleins et vides. Ce jeu de composition donne naissance à des façades dynamiques et vibrantes, où lumière et ombre dialoguent avec élégance, tout en respectant la proximité du parc de l’Haÿ-les-Roses et la lisière d’une forêt environnante.
Implanté à la frontière entre l’urbanité dense de Chevilly-Larue et la verdure apaisante du parc de l’Haÿ-les-Roses, ce projet établit une transition fluide entre ces deux réalités. La parcelle d’angle offre une position stratégique, transformant l’immeuble en un repère visuel dans le paysage local. Le choix des matériaux, associant la solidité et la neutralité du béton blanc à la chaleur et la naturalité du bois, reflète cette dualité entre le bâti et la nature. La composition volumétrique, jouant sur les ombres et la lumière, renforce cette relation, tandis que chaque détail est pensé pour intégrer le bâtiment dans son contexte sans l’alourdir.
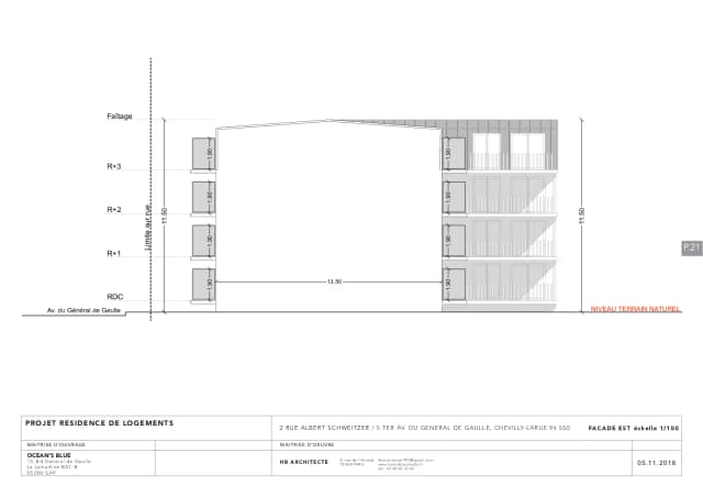
L’architecture du projet repose sur une juxtaposition harmonieuse entre stabilité structurelle et légèreté des espaces habitables, traduisant une vision poétique de la relation entre le bâti et son environnement naturel. La structure apparente en béton blanc forme un cadre géométrique rigoureux, conférant au bâtiment une identité forte tout en réfléchissant la lumière pour une esthétique épurée et intemporelle. Les volumes en bois, insérés dans cette trame structurelle, abritent les appartements et établissent un lien visuel et symbolique avec le parc voisin, rappelant la proximité de la nature. Ce contraste entre matériaux robustes et chaleureux donne au bâtiment une lecture sensible et contextuelle, tandis que les jeux de pleins et de vides animent les façades et rythment la perception de l’ensemble, selon les heures de la journée et les saisons.
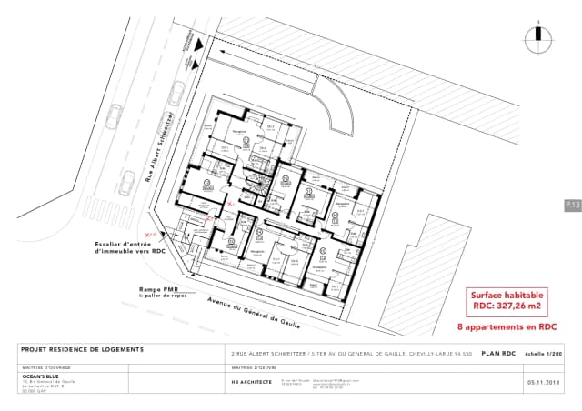
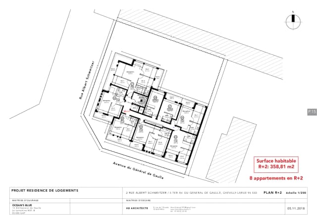
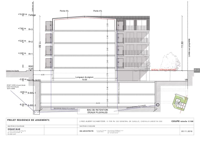
L’immeuble s’organise pour offrir une qualité de vie optimale aux résidents tout en respectant les contraintes techniques et environnementales. Au rez-de-chaussée, une entrée située sur l’angle de la parcelle marque le point d’accueil principal avec un espace couvert et généreux. Les locaux pratiques pour vélos, poussettes et autres équipements se mêlent à des espaces communs, favorisant les interactions sociales. Les logements des niveaux supérieurs sont modulables et adaptés à une variété de configurations, allant du T2 au T5. Chaque unité bénéficie d’un espace extérieur, qu’il s’agisse de loggias, terrasses ou balcons, conçus pour renforcer la connexion avec l’environnement et maximiser l’apport de lumière naturelle. Les deux sous-sols abritent des parkings et des locaux techniques, optimisant l’espace en surface et minimisant l’impact visuel des infrastructures.
En puisant dans une réflexion sémiologique sur la relation entre matériaux, lumière et environnement, le projet s’inscrit dans une dynamique narrative cohérente. Le béton blanc évoque la modernité et la stabilité, tandis que le bois, vivant et évolutif, introduit une dimension organique. Ce contraste traduit la tension harmonieuse entre l’urbanité et la nature. Les volumes, alternant pleins et vides, jouent avec les ombres et la lumière pour rythmer les façades et créer des espaces en mouvement. Les éléments architecturaux, comme les terrasses végétalisées et les balcons, s’intègrent dans une continuité visuelle avec le parc de l’Haÿ-les-Roses, soulignant que l’architecture peut être un outil de réconciliation entre l’homme et son environnement.
Le projet intègre des solutions techniques avancées pour minimiser son empreinte écologique et offrir un confort optimal. Les façades en bois, combinées à des systèmes d’isolation performants, garantissent une efficacité énergétique et acoustique. Les matériaux, sélectionnés pour leur faible empreinte carbone, incluent du bois certifié et du béton durable, tandis que les espaces extérieurs végétalisés favorisent la biodiversité locale et offrent des lieux de détente en plein air. Les systèmes de gestion des ressources naturelles, tels que la récupération des eaux pluviales et les panneaux solaires intégrés, renforcent l’engagement écologique du projet, qui devient un modèle de développement durable.
“Clair-Obscur Urbain” transcende les attentes d’un immeuble de logements pour offrir une vision où l’architecture reflète un équilibre subtil entre ancrage contextuel et ouverture sur l’avenir. Ce projet de 42 logements réinvente la densification urbaine en conjuguant fonctionnalité et poésie architecturale, tout en respectant l’environnement naturel et humain qui l’entoure. La structure visible, les volumes chaleureux et le respect des dynamiques naturelles redéfinissent l’habitat collectif, en célébrant la lumière, la matière et l’interaction avec la nature.
Clair-Obscur Urbain : Une Harmonie Structurelle entre Nature et Ville à Chevilly-Larue
Ce projet de réalisation d’un immeuble de 42 logements dans la ville de Chevilly-Larue, dans le Val-de-Marne, s’inscrit dans une démarche de contextualisme architectural et sémiologique, conjuguant respect de l’environnement naturel et intégration urbaine. Situé sur une parcelle d’angle, ce bâtiment de sept niveaux, comprenant deux niveaux de sous-sol, a été pensé pour dialoguer avec son environnement immédiat, à la lisière du parc de l’Haÿ-les-Roses et aux abords d’un tissu urbain en pleine évolution. L’architecture met en scène une structure porteuse en béton blanc apparente, qui agit comme un squelette sculptural, tandis que les volumes en bois abritant les logements viennent s’insérer dans cette trame, jouant sur un équilibre subtil entre pleins et vides pour composer des façades dynamiques et vibrantes.
1. Contexte et Intégration : Une Transition entre Ville et Forêt
Implanté à la frontière entre l’urbanité dense de Chevilly-Larue et les espaces naturels du parc de l’Haÿ-les-Roses, le projet vise à établir un dialogue entre ces deux réalités. La parcelle d’angle offre une visibilité stratégique, transformant l’immeuble en un repère architectural à l’échelle locale. Ce positionnement impose une réflexion sur la transition entre l'environnement bâti et la nature avoisinante, matérialisée ici par l’utilisation de matériaux contrastés – béton et bois – et par une composition volumétrique jouant sur les ombres et la lumière.
2. Expression Architecturale : Une Dualité Harmonique
L’architecture du projet s’articule autour de l’idée d’un contraste contrôlé entre la stabilité structurelle et la légèreté des espaces habitables, traduisant une lecture poétique de la relation entre le bâti et son contexte naturel.
- Structure Apparente en Béton Blanc : La structure porteuse, visible depuis l’extérieur, agit comme un cadre géométrique rigoureux qui donne une identité forte au bâtiment. Réalisée en béton blanc, elle reflète la lumière et offre une neutralité élégante, tout en mettant en valeur les volumes en bois qu’elle encadre.
- Volumes en Bois : Les éléments en bois, construits à l’intérieur de la trame structurelle, abritent les appartements. Ce matériau, à la fois chaleureux et organique, rappelle la proximité du parc et établit un lien visuel et symbolique avec la nature environnante.
- Jeux de Pleins et de Vides : La composition des façades repose sur une alternance subtile de volumes fermés et d’ouvertures, créant un effet de clair-obscur qui varie au gré des heures et des saisons. Les loggias, terrasses et balcons sont intégrés comme des espaces de transition, brouillant la frontière entre intérieur et extérieur.
3. Organisation Fonctionnelle et Espaces de Vie
Le projet est pensé pour offrir une qualité de vie optimale aux résidents tout en respectant les contraintes techniques et contextuelles.
- Rez-de-Chaussée et Entrée : L’entrée principale, située sur l’angle, est marquée par un retrait de la structure, créant un espace d’accueil généreux et couvert. Les rez-de-chaussée comprennent des locaux pour vélos et poussettes, ainsi que des espaces communs pour renforcer la convivialité.
- Appartements Modulables : Les logements, répartis sur les niveaux supérieurs, sont conçus pour s’adapter à des configurations variées (T2 à T5). Chaque unité bénéficie d’un accès à un espace extérieur – loggia, terrasse ou balcon – renforçant la connexion avec l’environnement naturel.
- Sous-Sols : Les deux niveaux de sous-sol abritent des parkings et des locaux techniques, optimisant ainsi l’utilisation de l’espace en surface et minimisant l’impact visuel des infrastructures.
4. Approche Sémiologique : Un Dialogue entre Matériaux et Environnement
Le projet traduit une réflexion profonde sur la relation entre le bâti, la lumière et la nature, dans une perspective sémiologique qui cherche à intégrer chaque élément architectural dans une narration cohérente.
- Matériaux Contrasts : Le béton blanc, synonyme de stabilité et de modernité, est associé au bois, matériau vivant et évolutif, pour évoquer une tension harmonieuse entre urbanité et nature.
- Lumière et Ombres : Les ouvertures et les volumes en retrait créent des jeux de lumière qui rythment les façades et renforcent la relation entre l’immeuble et son environnement immédiat.
- Lien avec la Nature : Les matériaux et les espaces extérieurs s’inscrivent dans une continuité visuelle avec le parc de l’Haÿ-les-Roses, rappelant que l’architecture est un outil pour réconcilier l’homme avec son environnement.
5. Durabilité et Performances Environnementales
Le projet intègre des solutions techniques avancées pour minimiser son empreinte écologique tout en assurant un confort optimal pour ses résidents.
- Isolation et Performance Énergétique : Les façades en bois, combinées à des systèmes d’isolation performants, garantissent une excellente efficacité thermique et acoustique.
- Gestion des Ressources : Les matériaux, tels que le bois certifié et le béton à faible empreinte carbone, sont choisis pour leur durabilité et leur impact environnemental réduit.
- Espaces Extérieurs : Les terrasses végétalisées et les balcons offrent des zones de respiration pour les résidents tout en contribuant à la biodiversité locale.
Conclusion
“Clair-Obscur Urbain” incarne une vision où l’architecture devient le reflet d’un équilibre subtil entre ancrage dans le contexte et ouverture sur l’avenir. Ce projet de 42 logements à Chevilly-Larue réinvente la manière dont un immeuble peut s’insérer dans son environnement, en jouant sur les contrastes entre matériaux, lumière et espaces. À travers sa structure visible, ses volumes chaleureux et son respect des dynamiques naturelles, il offre une nouvelle lecture de la densification urbaine, où la fonctionnalité rencontre la poésie architecturale.




































