“L’Interstice du Bois et du Ciel” – Une Architecture en Suspension
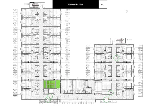
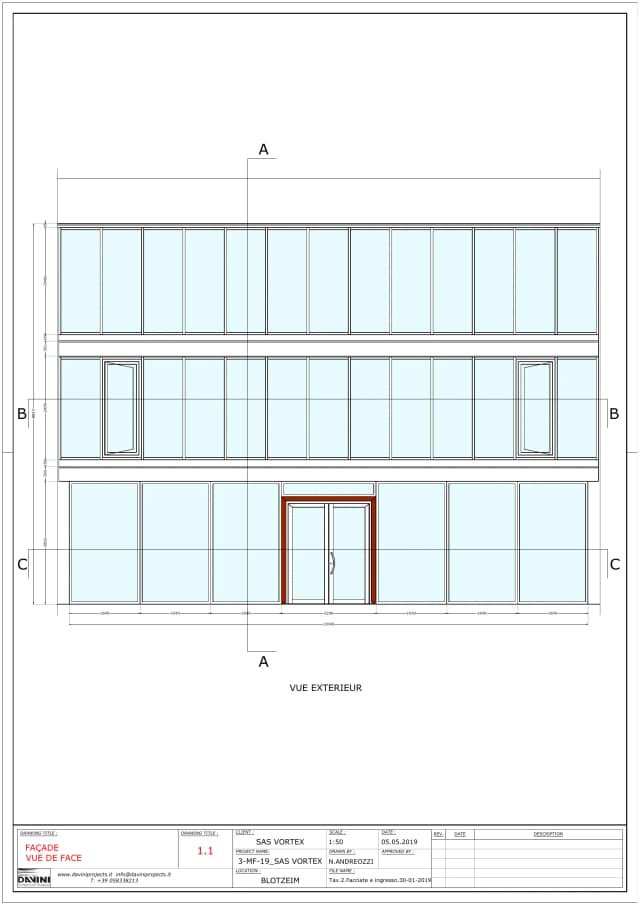
L’architecture naît parfois de l’évidence d’un lieu, d’un territoire qui impose sa propre syntaxe. À Blotzheim, sur cette terre où la France, l’Allemagne et la Suisse se croisent en un point d’équilibre, où l’aéroport devient frontière et seuil, l’hôtel s’inscrit dans une continuité fluide entre sol et ciel, une œuvre habitée par la mouvance du voyage et la permanence du refuge. Il n’est pas un bâtiment que l’on traverse, mais une respiration que l’on habite. Sa forme en U, pensée comme un écrin protecteur, s’ouvre sur un espace central où l’eau et la végétation viennent apaiser la rigueur des lignes architecturales, établissant un dialogue entre la nature et la matière. L’accueil, au cœur du U, agit comme un pivot spatial, orchestrant les circulations et les transitions entre le dedans et le dehors, entre la verticalité du bâti et l’horizontalité du paysage. À droite, la réception et le lobby forment un espace liminal, un seuil perceptif où le bois massif, omniprésent, devient langage et atmosphère.
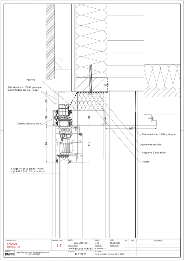
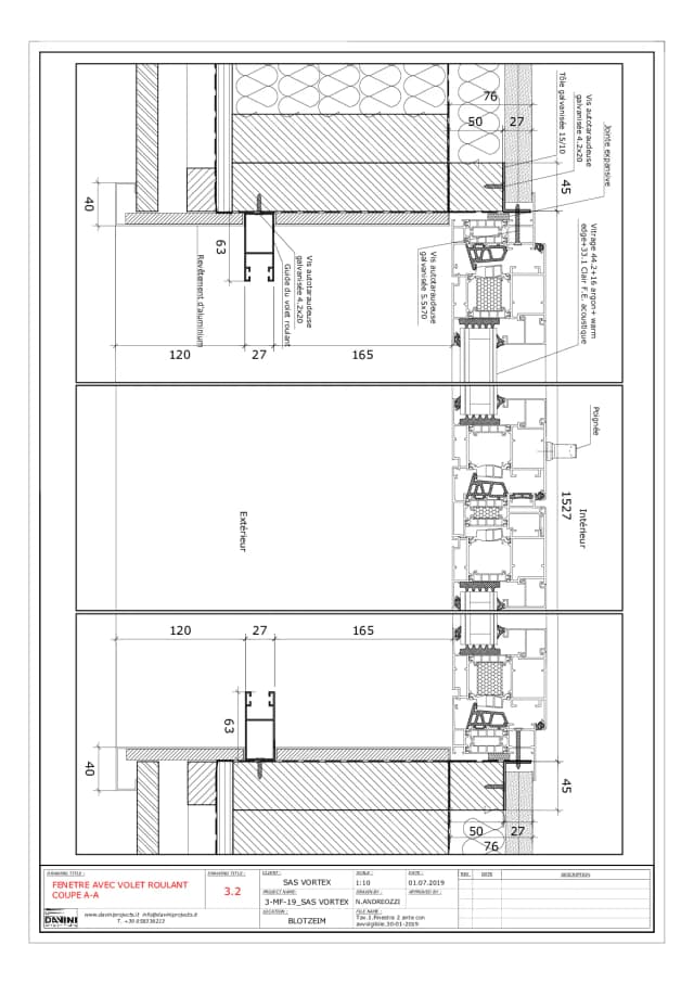
L’architecture ici se veut sémantique, enracinée dans une lecture du territoire. Le soubassement en béton, profond et ancré, joue le rôle d’une assise tectonique, garantissant l’étanchéité et la stabilité du projet. Il est la mémoire du sol, la strate première sur laquelle repose une structure qui s’élève dans une autre dimension. Au-dessus, l’ossature bois prend le relais, réinterprétant la tradition constructive alsacienne à travers une matérialité contemporaine où le CLT sculpte l’espace et compose les volumes avec une rigueur silencieuse. La façade, bardée de bois brûlé selon la technique ancestrale du Shou Sugi Ban, confère à l’édifice une identité forte, une minéralité organique qui vibre avec la lumière changeante du jour. L’isolation en laine de chanvre parachève cette approche bioclimatique, garantissant une enveloppe vivante et respirante, capable de dialoguer avec son environnement et de réguler naturellement les flux thermiques et hygrométriques.
À l’intérieur, la designer Astrid Arnaud orchestre une mise en scène subtile des matières et des sensations, où le bois se mêle aux pierres locales, où les tissus en fibres végétales participent à une douceur perceptive, où chaque détail porte en lui une conscience écologique et une précision artisanale. Les chambres, pensées comme des alcôves ouvertes sur le paysage, invitent à l’immersion dans un cadre apaisé, épuré de toute fioriture, où la lumière naturelle sculpte l’espace et magnifie la texture des matériaux. Le restaurant, lieu de rencontre et de partage, célèbre la gastronomie locale dans une ambiance feutrée, ponctuée de jeux d’ombres et de reflets. Plus loin, le spa et l’espace bien-être prolongent cette expérience sensorielle, intégrant sauna, bains nordiques et bassins de relaxation en lien direct avec le jardin intérieur et la piscine extérieure.
Mais cet hôtel n’est pas seulement une structure élégante et confortable ; il est un manifeste environnemental. Conçu selon les principes du bâtiment passif, il intègre des solutions énergétiques avancées, telles que des toitures végétalisées, des panneaux photovoltaïques, une ventilation double flux et un système de récupération des eaux pluviales, permettant de réduire son empreinte tout en optimisant ses performances. Chaque matériau a été sélectionné pour sa durabilité, chaque procédé de construction pensé pour minimiser l’impact sur le site. L’approche architecturale n’est pas seulement écologique dans son fonctionnement, elle est intrinsèquement responsable dans son essence même, dans sa manière d’interagir avec l’espace et le temps.
L’Interstice du Bois et du Ciel n’est pas un édifice figé, mais une respiration architecturale, un équilibre suspendu entre le minéral et le végétal, entre la matière et l’immatériel. Il est un seuil entre trois territoires, un refuge dans le flux du voyage, une écriture de l’espace où chaque élément – du bois à la lumière, du plein au vide – trouve sa juste place dans une harmonie silencieuse. À Blotzheim, au bord des pistes et au cœur des cultures, il s’érige comme un manifeste d’une nouvelle hospitalité, celle qui ne se contente pas d’abriter mais qui transforme l’expérience du séjour en une immersion sensorielle, où l’architecture dialogue avec l’âme du lieu et la mémoire du temps.
“L’Interstice du Bois et du Ciel” – Un Hôtel en Dialogue avec le Territoire
Un projet ancré dans la sémiologie du lieu et la matérialité écologique
1. Un Contextualisme Architectural au Cœur des Trois Frontières
L’hôtel de Blotzheim s’inscrit dans une logique de contextualisme architectural, intégrant à la fois l’histoire du site, les dynamiques territoriales et les exigences écologiques les plus élevées. Situé à la croisée des cultures française, allemande et suisse, il est à la fois un carrefour et un seuil, un espace de transition entre les nations, le sol et l’air, la matière et la lumière.
La forme en U exprime cette ouverture au monde tout en protégeant un espace intime et végétalisé, où l’eau et la nature rétablissent un équilibre sensoriel et spatial. L’hôtel devient ainsi un lieu de passage et d’ancrage, un interstice architectural qui capte le mouvement tout en offrant un refuge de sérénité.
2. Une Matérialité Sémiologique : L’Expression du Bois comme Identité Structurante
2.1. Le Bois comme Écriture de l’Architecture
Le choix du bois massif pour l’ensemble des niveaux émergents est une réponse à une double lecture sémiologique et technique :
• Un ancrage dans la tradition constructive locale, où l’ossature bois alsacienne dialogue avec la modernité du CLT.
• Une matérialité écologique et expressive, où la structure elle-même devient le langage du projet :
• Planchers en CLT pour assurer rigidité et réduction des ponts thermiques.
• Façades en ossature bois et bardage en bois brûlé (Shou Sugi Ban), assurant une pérennité et une intégration paysagère.
• Isolation en laine de chanvre, offrant une haute performance thermique tout en maintenant une régulation hygrométrique naturelle.
2.2. Le Dialogue entre Minéralité et Légèreté
La partie enterrée en béton assure une rupture sémantique et fonctionnelle avec la légèreté du bois aérien. Solide et étanche, elle établit la connexion au sol, ancre l’édifice dans la géologie du site et supporte la superstructure en bois.
3. Une Morphologie Inspirée par la Mouvance du Lieu
3.1. La Forme en U : Accueillir, Encadrer, Ouvrir
L’organisation spatiale en U est pensée comme une réponse à plusieurs enjeux :
• Encadrer un espace central végétalisé, où la piscine et les aménagements extérieurs deviennent une extension sensorielle du bâti.
• Orienter les vues vers des perspectives paysagères optimales, en maximisant l’apport de lumière naturelle et en limitant les nuisances sonores liées à l’aéroport.
• Créer une dynamique de mouvement et de seuil, où l’architecture joue sur des transitions progressives entre l’espace public (hall, lobby, réception) et les espaces privés (chambres, spa, restaurant).
3.2. Une Séquence Architecturale Pensée comme une Expérience Sensorielle
L’entrée principale, située au centre du U, est conçue comme une césure temporelle : le visiteur quitte le tumulte du voyage et entre dans un espace où le bois, la lumière et les matières naturelles agissent comme un filtre apaisant.
Les circulations sont traitées comme des galeries ouvertes sur l’extérieur, offrant un jeu de transparences et d’ombres projetées par les claustras en bois qui rythment les façades.
4. Une Écologie Intégrée : Architecture Passive et Autonomie Énergétique
4.1. Un Bâtiment Passif et Résilient
L’hôtel répond aux standards les plus exigeants en matière de performance énergétique et de réduction d’empreinte carbone :
• Conception bioclimatique intégrant une inertie thermique naturelle et une protection solaire optimisée.
• Toiture végétalisée et panneaux photovoltaïques, pour une autonomie énergétique partielle et une meilleure régulation des eaux pluviales.
• VMC double flux avec récupération de chaleur, assurant une ventilation maîtrisée et une qualité de l’air optimale.
• Récupération et réutilisation des eaux pluviales, notamment pour l’arrosage des espaces verts et l’entretien des installations.
4.2. Une Matérialité Écoresponsable et Circulaire
L’ensemble des matériaux est issu de filières locales et durables, minimisant l’impact environnemental tout en valorisant le savoir-faire régional :
• Bois provenant de forêts gérées durablement, avec une transformation locale pour limiter l’empreinte carbone.
• Textiles et revêtements en fibres naturelles (lin, chanvre, laine feutrée), garantissant une ambiance intérieure saine et chaleureuse.
• Mobilier conçu sur mesure en bois recyclé et en matériaux biosourcés.
5. Un Intérieur Entre Contemporanéité et Organicité
5.1. Une Signature Design par Astrid Arnaud
L’aménagement intérieur, confié à Astrid Arnaud, s’inspire d’un dialogue entre rigueur contemporaine et sensualité des matières. Chaque espace est une invitation à l’expérience tactile, où le bois brut, les pierres naturelles et les tissus en fibres végétales offrent une sensation de confort et d’ancrage dans le réel.
5.2. Des Espaces Imaginés Comme des Cocon Protecteurs
• Les chambres, pensées comme des alcôves chaleureuses, privilégient des lignes épurées et des perspectives ouvertes sur l’extérieur.
• Le restaurant, espace de rencontre et de gastronomie locale, associe volumes généreux, lumière tamisée et mobilier organique, offrant une immersion dans une atmosphère apaisante.
• Le spa et la zone bien-être, intégrant sauna, bains nordiques et espaces de méditation, en lien direct avec la piscine extérieure et le jardin central.
6. Conclusion : Une Architecture en Suspension Entre Terre et Ciel
L’Interstice du Bois et du Ciel n’est pas un simple hôtel. C’est un manifeste architectural, une réponse contemporaine aux enjeux de durabilité et de contextualisme. Il est à la fois un seuil et un refuge, une architecture en mouvement et un lieu d’ancrage, où le bois, la lumière et la matérialité dialoguent pour offrir une expérience sensorielle unique.
Un lieu suspendu dans l’espace et le temps, où l’architecture réconcilie le voyage et la nature, la mémoire et l’avenir.



























































