« L’Agora Transparente d’Esbly : Entre Résonance Contextuelle et Évanescence Matérielle »
L’extension de la mairie d’Esbly s’inscrit dans une écriture où la matérialité et la transparence ne sont plus antinomiques mais s’imbriquent dans un dialogue subtil avec le contexte existant. Ce projet ne se limite pas à une juxtaposition fonctionnelle, il incarne une vision où l’architecture devient un langage, un trait d’union entre la mémoire d’un territoire et les exigences d’une gouvernance contemporaine. Il est question ici d’une structure qui, sans s’effacer, ne domine pas ; qui, sans pasticher, réinterprète ; qui, sans heurter, dialogue avec le tissu urbain. Commanditée par la société MCO Constructions, cette réflexion s’est articulée autour de la recherche d’une structure hybride où le bois, l’acier, l’inox et le verre coexistent dans une syntaxe architecturale équilibrée, entre pesanteur et légèreté, entre opacité et fluidité.
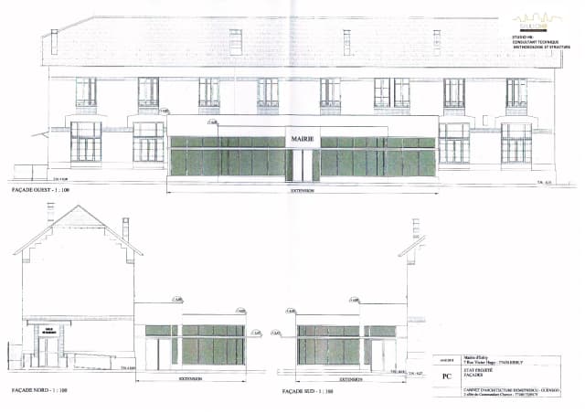
L’acte de construire une extension municipale ne peut être anodin, tant l’espace public se doit d’être un manifeste de lisibilité et d’accessibilité. La mairie n’est plus un édifice clos, elle devient une interface civique où le seuil disparaît, où l’institution se révèle et où la ville s’invite. Le projet puise ainsi sa logique dans l’articulation entre réversibilité structurelle et ancrage symbolique, entre rationalité constructive et expressivité architectonique. Il ne s’agit pas d’un simple volume accolé, mais d’une extension pensée comme une couture urbaine, un lieu où la mémoire bâtie s’efface progressivement dans un geste contemporain mesuré. L’ossature bois, première hypothèse, offre une matérialité chaleureuse et une empreinte écologique mesurée. Système poteaux-poutres en lamellé-collé, bardage ajouré en façade et toiture mixte bois-inox, chaque élément participe d’un langage où la structure se veut à la fois ancrage et légèreté. L’acier et l’inox, en contrepoint, proposent une lecture plus aérienne de l’espace. Une ossature en profilés tubulaires, une trame modulaire évolutive, des surfaces en inox poli qui absorbent et reflètent la lumière du contexte, créant une dialectique entre opacité et reflets. Le verre, quant à lui, n’est plus un simple matériau mais un élément sémiotique. Il incarne la transparence institutionnelle, la porosité entre gouvernance et citoyens. La façade structurelle autoportante, combinée à des vitrages à contrôle solaire et sérigraphiés, devient l’expression d’une architecture lisible et accessible, où la lumière sculpte les volumes et rend lisibles les transitions.
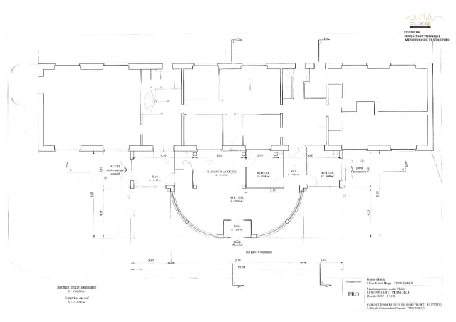
L’extension ne doit pas être un monolithe. Elle doit évoluer, s’adapter, dialoguer avec les mutations futures du territoire. D’où le choix d’une structure hybride où chaque matériau trouve sa résonance dans une composition équilibrée : le bois pour sa présence organique et son ancrage dans l’échelle humaine, l’acier pour sa finesse et sa tension structurelle, le verre pour sa capacité à effacer la frontière entre intérieur et extérieur. L’édifice s’ouvre sur un parvis conçu comme un seuil démocratique, un espace de transition où la ville et l’institution s’interpénètrent. Une double peau en verre sérigraphié tisse un dialogue subtil entre opacité et transparence, faisant écho au patrimoine local tout en affirmant un langage contemporain. En son cœur, un atrium baigné de lumière articule les circulations, structurant l’espace sans monumentalité excessive. L’extension devient ainsi un lieu d’échange et de continuité, un espace fluide et évolutif, où la matière et la lumière orchestrent une nouvelle perception de l’espace public.
Dans cette Agora Transparente, l’architecture ne se contente pas de répondre à une fonction, elle devient un manifeste. Elle est le reflet d’une institution qui se veut accessible, ancrée dans la mémoire collective tout en étant tournée vers l’avenir. Par une écriture subtile des pleins et des vides, des masses et des transparences, elle transcende son rôle d’extension pour devenir une expérience spatiale à part entière, une respiration dans le tissu urbain, un geste où l’histoire et le contemporain s’entrelacent dans une poétique de la matière et de la lumière.
L’Agora Transparente d’Esbly : Dialogues Architecturaux entre Mémoire et Modernité
1. Introduction : Une extension comme un pont entre passé et futur
L’extension de la mairie d’Esbly (77) s’inscrit dans une démarche de contextualisme architectural et sémiologique, où la mémoire du lieu et les attentes contemporaines se conjuguent dans un dialogue structuré. Commanditée par la société MCO Constructions, l’étude a exploré plusieurs typologies structurelles (bois, acier, inox, verre) afin de trouver l’équilibre idéal entre réversibilité, durabilité et lisibilité architecturale.
L’objectif est de concevoir un espace qui prolonge l’identité de la mairie existante tout en affirmant son ancrage dans une écriture contemporaine, où la transparence et la matérialité dialoguent avec le contexte urbain et paysager.
2. Contexte et enjeux : une architecture en résonance avec son environnement
L’extension de la mairie ne doit pas être une juxtaposition brutale, mais un élément de couture urbaine, une transition maîtrisée entre l’existant et les nouvelles exigences d’un service public en mutation.
• Réinterprétation du patrimoine : L’architecture existante est prise comme une matrice référentielle qui guide les choix architecturaux, notamment dans la volumétrie et l’usage des matériaux.
• Élégance structurelle et lisibilité fonctionnelle : L’extension doit être identifiable et signifier son statut d’interface citoyenne, tout en conservant une cohérence morphologique avec l’existant.
• Ouverture et dialogue : La transparence et la fluidité spatiale sont pensées comme des vecteurs de démocratisation et d’accessibilité des espaces institutionnels.
• Une approche bioclimatique : L’extension s’intègre dans une démarche de performance énergétique, réduisant son impact environnemental grâce à l’utilisation de matériaux biosourcés et à une gestion passive des flux thermiques.
3. Méthodologie structurelle et choix architecturaux
L’étude a permis d’analyser différentes structures en fonction des contraintes techniques, architecturales et contextuelles du site.
3.1. Structure en bois : matérialité et performance écologique
Le bois a été envisagé comme une solution à faible empreinte carbone et à forte réversibilité, permettant une rapidité d’exécution et une légèreté structurelle intéressante.
• Utilisation d’un système poteaux-poutres en lamellé-collé pour optimiser la portée et la modularité des espaces.
• Revêtement en bardage bois ajouré en façade, assurant une transition douce entre la mairie existante et l’extension.
• Toiture à charpente mixte bois-inox, limitant les déformations structurelles tout en conservant une esthétique chaleureuse et contemporaine.
3.2. Structure acier et inox : finesse et légèreté expressive
L’acier et l’inox offrent une alternative plus sculpturale et élancée, où la structure devient un jeu de transparence et de légèreté.
• Ossature en profilés acier tubulaires, permettant une structure élancée et des portées généreuses sans obstruction visuelle.
• Utilisation d’éléments en inox poli pour refléter subtilement les jeux de lumière et dialoguer avec le paysage environnant.
• Une trame modulaire qui autorise des évolutions futures et une reconfiguration flexible des espaces intérieurs.
3.3. Structure en verre : la matérialisation de la transparence institutionnelle
Le verre est ici envisagé comme un matériau d’interface, favorisant une relation fluide entre l’espace public et l’espace administratif.
• Façades en verre structurel autoportant, limitant l’impact visuel des éléments porteurs et maximisant l’apport de lumière naturelle.
• Intégration de vitrages à contrôle solaire et à isolation thermique renforcée pour optimiser la performance énergétique.
• Utilisation de verre feuilleté sérigraphié pour signaler certaines zones tout en conservant une transparence partielle, favorisant la lisibilité des espaces sans perdre en intimité.
4. Synthèse conceptuelle et direction architecturale recommandée
4.1. Une structure hybride et évolutive
L’étude recommande une approche mixte, combinant bois, acier et verre afin de tirer parti des qualités structurelles et esthétiques de chaque matériau :
• Bois pour l’ancrage environnemental et la chaleur sensorielle.
• Acier pour la finesse des lignes et la légèreté constructive.
• Verre pour la transparence institutionnelle et l’ouverture démocratique.
4.2. Une architecture de l’interface civique
L’extension devient un lieu de transition et d’échange, où l’architecture traduit une vision institutionnelle plus accessible, plus ouverte, plus lisible.
• Un parvis traité comme un seuil démocratique, favorisant une relation fluide entre intérieur et extérieur.
• Une double peau en verre sérigraphié, jouant sur des motifs inspirés du patrimoine local, matérialisant une mémoire réinterprétée.
• Un atrium central lumineux, articulant les circulations internes et affirmant la verticalité de l’espace sans créer d’effet monumental excessif.
5. Conclusion : Une Agora Contemporaine au service des citoyens
L’extension de la mairie d’Esbly se veut plus qu’un simple ajout fonctionnel : elle devient un acte architectural porteur de sens, où structure et sémiotique dialoguent pour matérialiser un service public repensé.
En s’appuyant sur une méthodologie structurelle hybride, ce projet propose une réponse architecturale qui tisse des liens entre le passé et l’avenir, entre l’institution et le citoyen, entre la matière et la lumière. Une agora ouverte et transparente, où l’architecture devient le reflet d’une gouvernance moderne et accessible.
























