L’Écrin Blanc : Une symbiose entre modernité et nature
“L’Écrin Blanc” est une résidence privée individuelle moderne sur trois niveaux, conçue par Studio HB pour un couple et leurs trois enfants. Située dans un environnement pavillonnaire entouré de forêt et d’une grande étendue d’eau, cette maison s’inscrit dans un rapport de contextualisme architectural et sémiologique. L’architecture intègre des matériaux naturels et une conception lumineuse et ouverte, inspirée par les éléments environnants, tout en offrant un cadre de vie familial fonctionnel et esthétique. Le projet explore un équilibre délicat entre la modernité et le respect du paysage naturel et urbain. Le site révèle une double identité : un voisinage pavillonnaire modeste et une proximité immédiate avec la nature. La maison s’intègre à ces deux réalités grâce à un volume simple en dialogue avec le tissu urbain et des ouvertures généreuses célébrant l’environnement naturel. Orientée pour maximiser les vues sur l’eau et la forêt tout en préservant l’intimité, elle joue sur des volumes géométriques simples et articulés. Une verrière centrale, inspirée des patios méditerranéens, devient l’élément clé du design en offrant une lumière zénithale naturelle. L’enveloppe principale en brique structurelle enduite à la chaux blanche évoque les maisons traditionnelles tout en affirmant une esthétique contemporaine. Les menuiseries noires et le bois, omniprésents sur les façades secondaires, terrasses et finitions intérieures, renforcent la chaleur et le lien avec l’environnement naturel. La pierre à agrafer, utilisée sur la base et certains murs, ancre la maison dans le paysage, mêlant robustesse et durabilité.
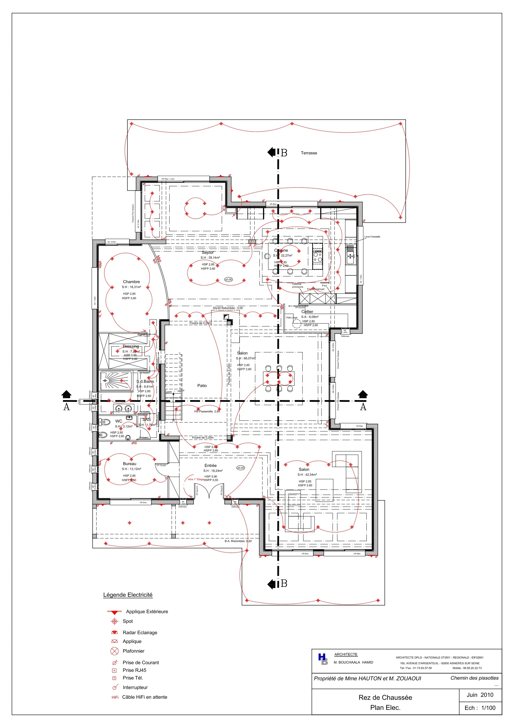
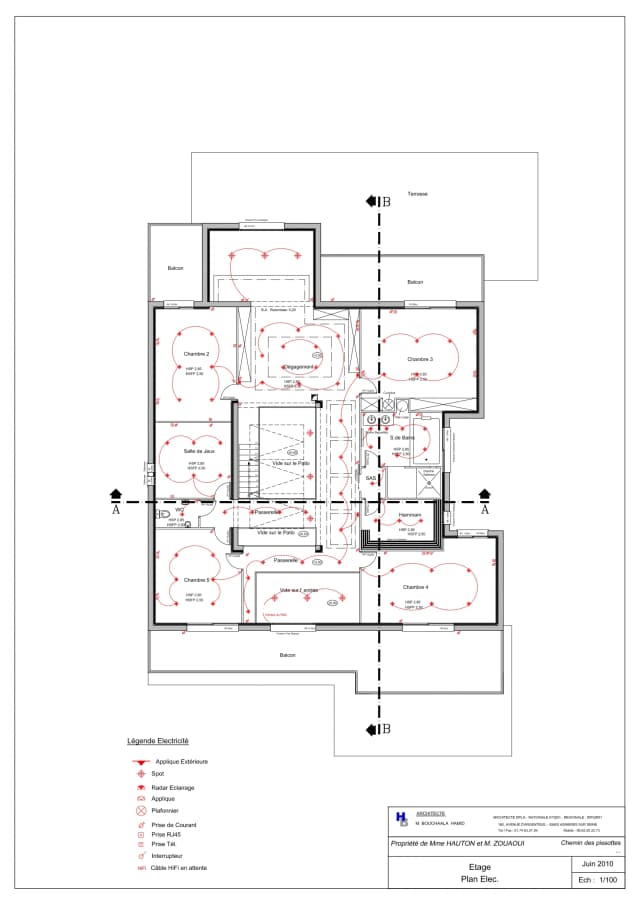
Le rez-de-chaussée est dédié aux espaces de réception. Une entrée lumineuse mène à un salon à double hauteur ouvert sur l’étendue d’eau grâce à des baies vitrées coulissantes. La cuisine ouverte, avec son îlot central, et la salle à manger attenante s’intègrent dans une continuité visuelle avec l’extérieur. Un bureau isolé, orienté vers la forêt, favorise calme et concentration, tandis que le patio central sous verrière inonde les espaces de vie d’une lumière naturelle. Le premier étage accueille les espaces des enfants : trois chambres individuelles avec vue sur la forêt, une salle de jeux favorisant les moments de partage et une salle de bain commune associant modernité et matériaux naturels. Le dernier niveau est réservé à la suite parentale, avec dressing, salle de bain privative et une terrasse végétalisée offrant une vue apaisante sur l’étendue d’eau. Cette terrasse privée, entourée de verdure, devient un espace de détente et d’introspection. La maison se veut également durable : des panneaux solaires dissimulés produisent une partie de l’énergie nécessaire, tandis que des systèmes de récupération des eaux pluviales irriguent le jardin et alimentent les toilettes. L’orientation optimisée du bâtiment exploite les apports solaires en hiver et limite la surchauffe estivale grâce à des brise-soleil.
L’intégration harmonieuse de la résidence dans le quartier pavillonnaire s’appuie sur des matériaux traditionnels et un design sobre, tandis que l’environnement naturel inspire l’ouverture et l’utilisation de matériaux nobles. Le Studio HB assure la conception, combinant esthétique moderne et fonctionnalité familiale. Des artisans spécialisés exécutent les travaux de menuiserie et de pose de pierre, tandis que des paysagistes élaborent un jardin et des terrasses parfaitement intégrés au cadre forestier. “L’Écrin Blanc” représente une maison familiale moderne où l’architecture contemporaine dialogue avec son environnement. Matériaux nobles et design lumineux traduisent une idée de connexion et de sérénité. Le patio central et les ouvertures généreuses offrent une vie en symbiose avec la nature, répondant aux attentes d’une famille recherchant modernité, ancrage et harmonie.
Type d’Information
Architecture Résidentielle Contemporaine : Le projet explore l’équilibre entre modernité et respect du paysage naturel et de son contexte pavillonnaire.
Détails du Projet
1. Analyse contextuelle et insertion spatiale
• Contexte pavillonnaire et naturel :
• Le site est marqué par une double identité : un voisinage pavillonnaire aux constructions modestes et une proximité immédiate avec la nature (forêt et étendue d’eau).
• La maison est pensée pour dialoguer avec ces deux réalités : un volume simple pour s’intégrer dans le tissu urbain, mais des ouvertures généreuses et des matériaux naturels pour célébrer l’environnement naturel.
• Implantation :
• La maison est orientée pour maximiser les vues sur l’eau et la forêt, tout en préservant l’intimité par rapport aux propriétés voisines.
2. Expression architecturale
• Volume et composition :
• La maison se compose de volumes géométriques simples mais articulés, créant des jeux d’ombres et de lumière.
• Une verrière centrale, inspirée d’un patio méditerranéen, coiffe la maison et devient l’élément clé du design, offrant un puits de lumière naturel.
• Matériaux :
• Brique structurelle enduite à la chaux blanche : L’enveloppe principale est sobre et lumineuse, rappelant les maisons traditionnelles tout en adoptant une esthétique contemporaine.
• Menuiseries noires : Les ouvertures en aluminium noir accentuent les lignes épurées et offrent un contraste élégant avec les murs blancs.
• Bois : Utilisé pour les façades secondaires, les terrasses et certaines finitions intérieures, il apporte une chaleur naturelle et un lien direct avec la forêt environnante.
• Pierre à agrafer : Revêt les éléments de la base et certains murs, ancrant la maison dans le paysage tout en évoquant la robustesse et la durabilité.
3. Organisation des espaces
• Rez-de-chaussée :
• Espace de réception : Une entrée lumineuse donne sur un grand salon avec double hauteur, ouvert sur l’étendue d’eau grâce à des baies vitrées coulissantes.
• Cuisine et salle à manger : Une cuisine ouverte avec un îlot central et une salle à manger attenante, connectées visuellement au salon et à l’extérieur grâce à des ouvertures panoramiques.
• Bureau : Un espace isolé, orienté vers la forêt, permettant de travailler dans le calme et la concentration.
• Accès au patio central : Une verrière centrale couvre le patio, apportant une lumière zénithale qui inonde les espaces de vie.
• Premier étage :
• Chambres des enfants : Trois chambres individuelles avec des vues sur la forêt et des placards intégrés.
• Salle de jeux : Un espace ouvert reliant les chambres des enfants, favorisant les moments de partage.
• Salle de bain commune : Aménagée avec des matériaux modernes, comme du bois et de la pierre, pour un style naturel et fonctionnel.
• Dernier niveau :
• Suite parentale : Une chambre principale avec dressing, salle de bain privative et une terrasse donnant sur l’étendue d’eau.
• Terrasse végétalisée : Un espace extérieur privé, équipé de meubles en bois et entouré de verdure, offrant un cadre de détente pour les parents.
4. Approche sémiologique
• L’alliance de la modernité et de la nature :
• La sobriété des volumes géométriques et l’utilisation du blanc traduisent la modernité, tandis que les matériaux naturels (bois, pierre) créent une continuité avec le paysage.
• La centralité de la lumière :
• La verrière et les grandes ouvertures rappellent la nature omniprésente et la quête d’harmonie entre l’intérieur et l’extérieur.
• Le patio comme cœur de la maison :
• Inspiré par les maisons méditerranéennes, le patio central devient un symbole d’ouverture, de connexion et de vie familiale.
5. Construction et durabilité
• Techniques et matériaux :
• La brique structurelle assure une isolation thermique et une robustesse exceptionnelle.
• Les enduits à la chaux permettent une régulation naturelle de l’humidité et un vieillissement harmonieux des façades.
• Énergie et durabilité :
• Panneaux solaires dissimulés sur le toit pour produire une partie de l’énergie nécessaire.
• Systèmes de récupération des eaux pluviales pour l’irrigation du jardin et l’alimentation des toilettes.
• Design bioclimatique :
• Orientation optimisée pour profiter des apports solaires en hiver et limiter la surchauffe en été grâce aux brise-soleil.
6.Contexte Environnant
1. Quartier pavillonnaire :
• Le design sobre et les matériaux traditionnels permettent une intégration harmonieuse avec les habitations voisines.
2. Environnement naturel :
• La forêt et l’étendue d’eau inspirent l’utilisation de matériaux naturels et la conception ouverte, favorisant une immersion visuelle et sensorielle dans le paysage.
Conclusion
“L’Écrin Blanc” incarne une maison familiale moderne où l’architecture contemporaine dialogue avec l’environnement naturel et pavillonnaire. Par ses matériaux nobles et son design lumineux, cette résidence offre un cadre de vie harmonieux, fonctionnel et en symbiose avec son contexte. Le patio central et les grandes ouvertures traduisent l’idée de connexion, d’ouverture et de sérénité, répondant aux attentes d’une famille en quête de modernité et d’ancrage dans la nature.





































