L’Extension Évolutive du Siège Prowess : Une fusion d’innovation et de durabilité
“L’Extension Évolutive du Siège Prowess” marque un tournant dans l’histoire du Groupe Prowess, célébrant ses 15 années de croissance par une réinvention architecturale audacieuse. Situé à Massy, près du prestigieux plateau de Saclay, le projet s’inscrit dans une dynamique de modernisation et d’adaptation, répondant aux besoins d’une entreprise en pleine expansion. Conçu par Studio HB Architecture, ce projet intègre les valeurs d’innovation, de collaboration et de durabilité grâce à une combinaison de matériaux contemporains tels que le verre, le bois et le métal noir. En dialogue constant avec l’environnement académique et technologique de Saclay, l’extension et le réaménagement se traduisent par une architecture lumineuse, ouverte et fonctionnelle, tout en renforçant l’identité architecturale du groupe. Ancré dans un contexte géographique et économique riche, le projet se veut un miroir de l’esprit d’innovation et de collaboration qui caractérise le plateau de Saclay. L’extension s’intègre harmonieusement au bâtiment initial, également conçu par Studio HB, en reprenant ses lignes épurées et ses matériaux, tout en proposant une architecture plus lumineuse et accueillante. Les volumes rectilignes légèrement décalés créent des jeux de transparence et d’ombres, avec des façades en verre maximisant les apports de lumière naturelle et une connexion visuelle forte avec l’extérieur. Le bois lamellé-collé, omniprésent dans les structures et parements intérieurs, apporte une chaleur naturelle, tandis que le métal noir souligne les lignes contemporaines et ajoute une touche industrielle chic.
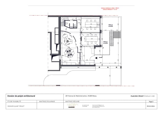
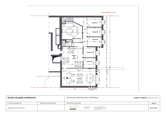
Le rez-de-chaussée se transforme en un espace collaboratif, accueillant un hall généreux baigné de lumière, des zones de coworking flexibles et une salle polyvalente capable d’accueillir conférences et séminaires. Les étages sont dédiés aux bureaux modulaires et aux salles de réunion équipées de technologies connectées, combinant transparence et confort acoustique grâce à des parois en verre et des panneaux absorbants. Les terrasses végétalisées et le jardin intérieur, situé entre l’extension et le bâtiment initial, favorisent la détente et offrent une connexion apaisante avec la nature environnante. L’architecture reflète également une approche sémiologique forte. Les façades en verre incarnent l’ouverture et la transparence du groupe, tandis que l’utilisation du bois et du métal noir établit un équilibre entre durabilité et innovation. Cette extension devient un symbole de l’évolution et de la capacité d’adaptation du Groupe Prowess, traduisant une identité architecturale dynamique et modulaire. Les choix de matériaux et de techniques de construction témoignent d’un engagement fort pour la durabilité : bois certifié FSC, verre à haute performance énergétique et métal recyclé garantissent un impact environnemental limité, tandis que les panneaux photovoltaïques et les systèmes de récupération des eaux pluviales renforcent l’autonomie énergétique et la gestion durable des ressources.
S’insérant dans un contexte naturel et technologique exigeant, l’extension dialogue avec le bâtiment initial pour former un ensemble cohérent et évolutif. Ce siège social repensé devient un lieu emblématique, intégrant parfaitement son environnement tout en répondant aux aspirations d’un groupe visionnaire. “L’Extension Évolutive du Siège Prowess” illustre ainsi une symbiose réussie entre innovation technologique, esthétique contemporaine et respect de l’environnement. En faisant converger modernité et durabilité, ce projet transcende les simples fonctions d’un siège social pour devenir un espace vivant, collaboratif et inspirant, porteur des ambitions futures du Groupe Prowess.
Type d’Information
Architecture Commerciale et Extension Modulaire : Le projet explore l’intégration d’une extension moderne dans un bâtiment existant, avec une attention particulière portée à l’harmonie entre les matériaux, les volumes et l’environnement.
Détails du Projet
1. Analyse contextuelle et insertion spatiale
• Contexte géographique et économique :
• Situé à proximité du plateau de Saclay, un hub technologique et académique, le siège social doit refléter l’esprit d’innovation et de collaboration qui caractérise cet environnement.
• L’extension répond aux besoins d’expansion tout en respectant l’échelle et les caractéristiques du site.
• Dialogue avec l’existant :
• Le siège social initial, également conçu par Studio HB, est un bâtiment fonctionnel et élégant qui utilise des matériaux contemporains.
• L’extension vise à compléter ce bâtiment en proposant une architecture plus ouverte et lumineuse, tout en restant en cohérence visuelle et fonctionnelle avec l’existant.
2. Expression architecturale
• Volumétrie et composition :
• L’extension se compose de volumes rectilignes légèrement décalés, créant des jeux de transparence et d’ombres.
• Les façades en verre offrent une connexion visuelle forte avec l’environnement extérieur, tout en maximisant la lumière naturelle à l’intérieur.
• Le bois apporte une chaleur naturelle et un lien direct avec la durabilité, tandis que le métal noir structure les éléments de façade et souligne les lignes épurées du design.
• Matériaux et textures :
• Verre : Utilisé pour les façades principales et les murs rideaux, symbolisant transparence et modernité.
• Bois lamellé-collé : Présent dans les éléments structurels et certains parements intérieurs, créant une ambiance chaleureuse et accueillante.
• Métal noir : Utilisé pour les cadres des vitrages et les garde-corps, ajoutant une touche industrielle chic et contemporaine.
3. Organisation fonctionnelle
• Rez-de-chaussée : Accueil et espaces collaboratifs :
• Hall d’accueil : Un espace généreux et lumineux, intégrant des doubles hauteurs et des ouvertures vers l’extérieur.
• Espaces de coworking : Zones flexibles équipées de mobilier modulable pour favoriser les échanges entre collaborateurs.
• Salle polyvalente : Conçue pour accueillir des événements internes et externes (conférences, séminaires).
• Étages : Bureaux et espaces spécialisés :
• Bureaux modulaires : Des espaces ouverts pour le travail collaboratif, complétés par des bureaux fermés pour les équipes nécessitant plus d’intimité.
• Salles de réunion : Équipées de technologies connectées, avec des parois en verre et des panneaux acoustiques pour garantir un confort sonore optimal.
• Espaces détente : Intégration de terrasses végétalisées et de zones de pause, offrant des vues sur le plateau de Saclay.
• Nouvel espace paysager :
• Un jardin intérieur entre le bâtiment initial et l’extension, conçu comme un lieu de détente et de connexion avec la nature.
4. Approche sémiologique
• Transparence et collaboration :
• Les façades en verre symbolisent l’ouverture et la transparence du groupe, tout en favorisant les échanges entre les collaborateurs et leur environnement.
• Ligne entre nature et technologie :
• L’utilisation du bois, associé à des matériaux modernes comme le verre et le métal, incarne l’équilibre entre durabilité et innovation, valeurs fondamentales du Groupe Prowess.
• L’identité en évolution :
• L’extension et le réaménagement traduisent la capacité d’adaptation et de croissance du groupe, soulignant une architecture dynamique et modulaire.
5. Construction et durabilité
• Matériaux durables :
• Utilisation de bois certifié FSC et de verre à haute performance énergétique pour limiter l’impact environnemental.
• Métal recyclé pour les structures et les cadres de fenêtres.
• Design bioclimatique :
• Orientation optimisée pour maximiser les apports solaires passifs en hiver et limiter la surchauffe en été.
• Installation de brise-soleil en bois sur les façades les plus exposées.
• Autonomie énergétique :
• Panneaux photovoltaïques intégrés sur la toiture de l’extension pour produire une partie des besoins en énergie.
• Systèmes de récupération des eaux pluviales pour l’irrigation des espaces verts.
6.Contexte Environnant
1. Massy et le plateau de Saclay :
• En tant que pôle d’excellence scientifique et technologique, le contexte environnant impose une architecture innovante et respectueuse de son environnement.
2. Dialogue avec le bâtiment initial :
• L’extension s’inscrit dans une continuité visuelle et fonctionnelle avec le siège social existant, créant un ensemble cohérent et évolutif.
3. Paysage local :
• Le jardin intérieur et les terrasses végétalisées renforcent l’intégration du projet dans un environnement naturel, tout en améliorant le bien-être des utilisateurs.
Conclusion
“L’Extension Évolutive du Siège Prowess” est une réponse architecturale moderne et élégante, qui reflète l’identité et les ambitions d’un groupe en pleine croissance. En combinant verre, bois et métal noir, le projet incarne un équilibre entre innovation technologique et durabilité environnementale, tout en s’intégrant harmonieusement dans son contexte géographique et patrimonial. Ce nouveau siège social devient ainsi un espace fonctionnel, collaboratif et emblématique, au service de l’avenir du Groupe Prowess.



















