« Strates Urbaines et Résonances Contemporaines : Quand l’Architecture Dialogue avec la Ville »
Dans l’effervescence du tissu urbain, entre mémoire construite et aspirations modernes, Studio HB érige une œuvre qui transcende la simple addition de ses éléments constitutifs pour s’inscrire dans une écriture architecturale sensible aux palimpsestes de la ville. À l’origine, trois parcelles fragmentées, vestiges d’une urbanité composite où se mêlent traces bâties et usages révolus. Une de ces entités, modeste, abritait déjà une présence bancaire. L’architecture prend ici appui sur la continuité et la mutation, intégrant le passé comme une strate fondatrice plutôt qu’un vestige à effacer. En collaboration avec la BNP, l’idée s’est affirmée : amplifier cette présence institutionnelle tout en générant une dynamique résidentielle contemporaine, une articulation entre la monumentalité discrète d’un programme bancaire et l’intimité plurielle d’un habitat collectif.
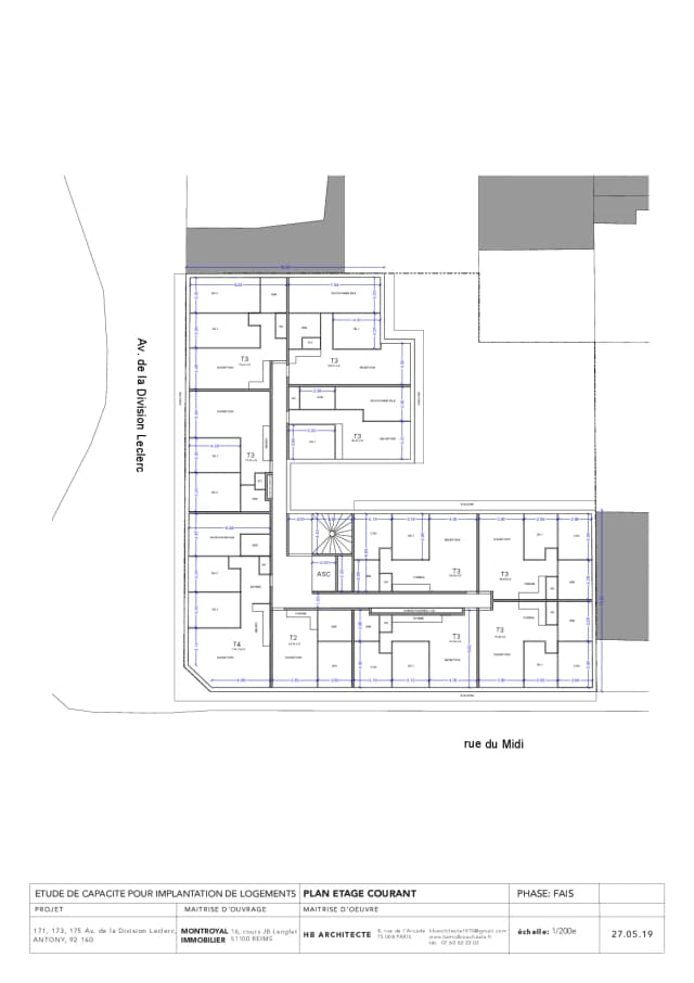
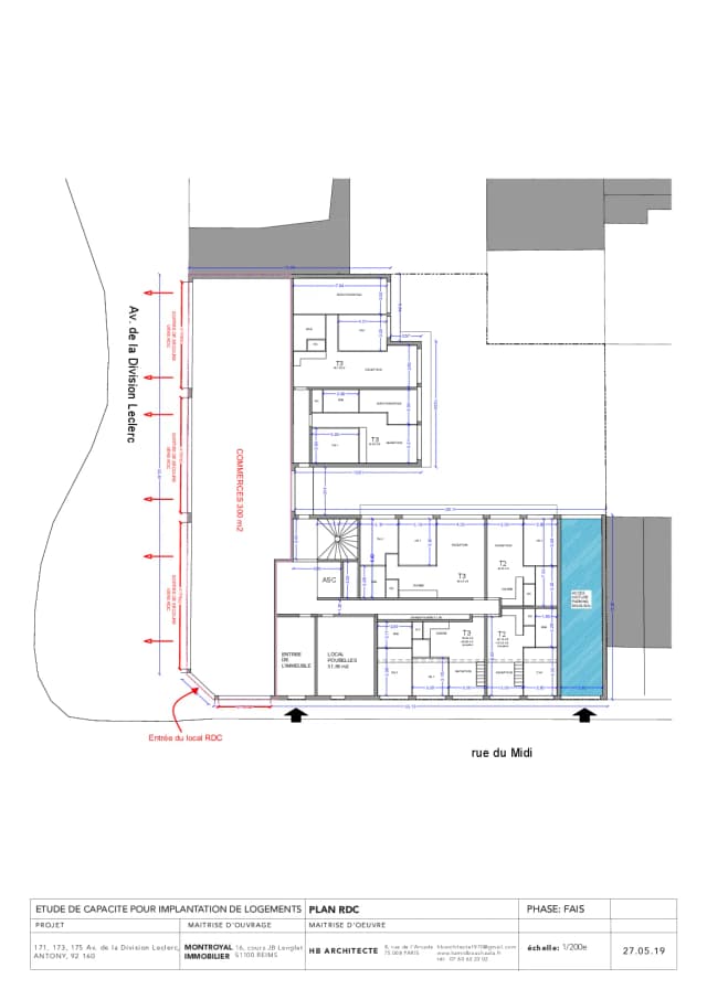
Le projet s’ancre dans une lecture tripartite de l’espace urbain : un socle actif, inscrit dans la continuité du rez-de-chaussée commerçant, affirme sa matérialité et son interaction avec le flux piéton. Il s’étire sur 450 m², créant une perméabilité visuelle par de larges vitrages qui réinterprètent le rythme urbain existant. Au-dessus, un volume résidentiel s’échelonne sur cinq niveaux, se modulant dans une écriture contemporaine où la rigueur géométrique dialogue avec la ville par des jeux d’ombre et de lumière. Enfin, un dernier niveau en attique se désolidarise du volume principal pour alléger la perception de la masse bâtie, offrant à ses habitants un rapport privilégié au ciel et à l’horizon.
La matérialité du projet est un langage à elle seule, une sémantique de la ville traduite en textures et nuances. La brique beige, choisie comme élément de continuité avec l’identité locale, s’impose par sa vibration lumineuse et sa profondeur, générant un dialogue sensible avec la temporalité diurne. Elle ne se contente pas d’être un revêtement, mais devient un filtre dynamique, captant la lumière et la redistribuant en variations subtiles selon les heures du jour. Les menuiseries extérieures, teintes d’un sable délicat, prolongent cette cohérence chromatique, effaçant la rupture entre intérieur et extérieur pour inscrire le projet dans une esthétique intemporelle, où chaque détail contribue à l’unité du tout.
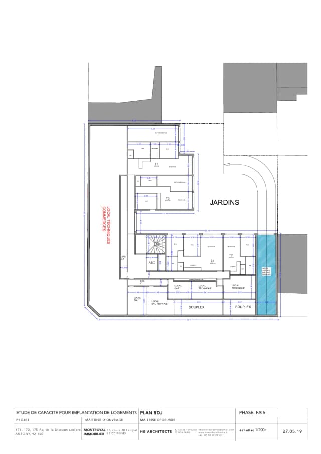
Dans cette densité urbaine maîtrisée, l’expérience résidentielle s’articule autour de la lumière et du vide, deux entités qui façonnent l’espace autant que les murs qui l’encadrent. Les 45 logements, pensés dans une approche de fluidité spatiale, privilégient les doubles et triples orientations, captant les flux d’air et optimisant les apports lumineux naturels. L’îlot intérieur se métamorphose en un patio végétalisé, cœur organique du projet, offrant aux habitants une respiration dans la trame bâtie. Il ne s’agit pas d’un simple agrément paysager, mais d’un élément structurant, une respiration urbaine qui adoucit la transition entre l’intimité des logements et la minéralité de la ville.
Le dernier niveau se distingue par une écriture en retrait, où des terrasses généreuses se déroulent comme des extensions naturelles des espaces de vie. Cette porosité spatiale se retrouve également dans la composition des façades, évitant toute rigidité monotone pour privilégier une diversité contrôlée des pleins et des vides, une respiration qui s’adapte à l’échelle de la ville et de ses habitants.
Mais l’architecture ne se contente pas d’être une forme, elle s’inscrit dans une conscience environnementale et urbaine qui dépasse la simple intention esthétique. Ici, la démarche bioclimatique est une composante intrinsèque du projet : inertie thermique optimisée par la brique, protection solaire passive intégrée dans les débords et les modénatures, ventilation naturelle favorisée par l’orientation des ouvertures. Chaque choix technique est un prolongement du concept architectural, une réponse à la nécessité de conjuguer confort d’usage et responsabilité environnementale.
Ainsi, ce projet ne cherche pas à s’imposer à son contexte mais à en être une résonance, une prolongation de la mémoire du lieu transformée en un geste contemporain. Il se positionne dans cette tension fertile entre continuité et rupture, entre le poids du passé et l’audace du présent. Une architecture qui parle avec la ville plutôt que de la dominer, qui s’insinue dans la trame urbaine sans chercher à l’éclipser. C’est un dialogue et non une proclamation, une architecture qui se donne à voir mais surtout à vivre, inscrivant dans la matière construite une poétique de la densité maîtrisée et du vide habité.
Harmonie Contextuelle et Sémiologie Urbaine : Un Dialogue entre Histoire, Matérialité et Contemporanéité
« Concept architectural du projet d’immeuble de 45 logements avec agence bancaire BNP – Conception et réalisation par Studio HB »
1. Contexte et ancrage urbain : une approche du contextualisme architectural
Studio HB inscrit ce projet dans une logique de contextualisme architectural, intégrant à la fois l’histoire du site, la matérialité locale et une vision contemporaine de l’habitat urbain. Situé sur trois parcelles aux identités hétérogènes, le projet est une réinterprétation contemporaine de la ville dense, respectant les traces du passé tout en offrant une lecture architecturale cohérente et renouvelée.
L’implantation du projet suit une logique urbaine tripartite :
• Un socle actif et ancré au niveau du rez-de-chaussée accueillant une agence bancaire BNP de 450 m², marquant la présence institutionnelle du projet dans le tissu urbain.
• Un corps principal résidentiel de 5 niveaux, en dialogue avec l’échelle des bâtiments environnants.
• Un dernier niveau en attique, traité en retraits et en terrasses afin d’atténuer la perception de la hauteur et offrir des espaces extérieurs généreux.
L’utilisation de la brique beige en façade permet d’inscrire l’édifice dans la continuité des tonalités urbaines avoisinantes tout en introduisant une modulation subtile des jeux de lumière sur les surfaces, créant ainsi une perception vibrante du bâti au fil des heures de la journée.
2. Sémiologie architecturale et matérialité : le langage du projet
L’architecture de l’immeuble repose sur une lecture sémiologique du bâti existant et de ses usages antérieurs. Le projet s’inspire des strates historiques du site tout en s’insérant dans une vision contemporaine de l’habitat collectif.
• Le socle en dialogue avec la rue :
L’agence bancaire, autrefois un simple espace intégré à un bâti ancien, devient ici un volume affirmé et structurant. L’usage d’une façade rythmée par des ouvertures verticales et de larges vitrines dialogue avec le paysage commercial de la rue, tout en apportant une lecture architecturale noble et épurée.
• La matérialité et le rapport à la ville :
La brique beige choisie pour les façades assure une pérennité esthétique et technique, rappelant les constructions en pierre calcaire typiques du patrimoine urbain local. Cette brique est mise en œuvre dans une trame dynamique, alternant reliefs et creux, afin de jouer avec les ombres et révéler l’architecture selon l’orientation solaire.
• Les menuiseries extérieures couleur sable :
Ce choix chromatique subtil crée une continuité visuelle entre les façades et les menuiseries, atténuant la rupture entre le bâti et le ciel. Il évoque une atmosphère douce et chaleureuse, renforçant le caractère accueillant du projet.
3. Expérience résidentielle et qualité d’usage
Le projet propose 45 logements contemporains conçus autour de principes de confort, de lumière et de flexibilité spatiale. Chaque appartement bénéficie d’une double ou triple orientation, optimisant les apports lumineux naturels et assurant une ventilation traversante.
• Un patio végétalisé en cœur d’îlot :
À l’arrière du bâtiment, un espace végétalisé recrée un îlot de fraîcheur et favorise une biodiversité urbaine. Ce jardin intérieur permet d’offrir des vues apaisantes depuis les logements tout en renforçant l’intimité des habitations.
• Des terrasses et balcons en attique :
Le dernier niveau propose de vastes espaces extérieurs privatifs, formant un dialogue harmonieux entre l’intérieur et l’extérieur. Ces terrasses en retrait garantissent une transition douce avec le ciel, offrant un cadre de vie privilégié aux résidents.
• Une architecture poreuse et adaptable :
Chaque niveau est structuré pour maximiser les continuités visuelles et l’ouverture vers l’extérieur, évitant toute monotonie architecturale et offrant des espaces habitables généreux et flexibles.
4. Approche environnementale et résilience urbaine
Studio HB intègre une réflexion environnementale avancée dans la conception de ce projet, favorisant une architecture durable et résiliente.
• Matériaux biosourcés et gestion de l’énergie :
• Briques à haute inertie thermique, réduisant les besoins en climatisation.
• Menuiseries extérieures en aluminium à rupture de pont thermique pour une meilleure performance énergétique.
• Toitures et terrasses végétalisées contribuant à la gestion des eaux pluviales et à l’atténuation des îlots de chaleur urbains.
• Ventilation naturelle et optimisation thermique :
• Dispositifs de ventilation naturelle grâce aux ouvertures traversantes.
• Protection solaire passive par débords de toiture et balcons, limitant la surchauffe estivale.
• Mobilité douce et intégration urbaine :
• Espaces dédiés aux vélos en rez-de-chaussée, facilitant les mobilités alternatives.
• Aménagement de l’accès piéton à l’agence BNP dans une logique de parcours fluide et intuitif.
Conclusion : une architecture du dialogue et de la résonance urbaine
Ce projet de 45 logements et agence bancaire BNP conçu par Studio HB incarne une architecture du dialogue, à la croisée de la mémoire urbaine et de la modernité habitée. Loin d’être une simple insertion, il s’agit d’une réinterprétation des traces du passé pour proposer un cadre de vie ancré dans son contexte, tout en apportant une réponse contemporaine aux enjeux de densification et de durabilité.
En combinant contextualisme, matérialité et sémiologie urbaine, ce projet affirme une identité forte tout en respectant son environnement immédiat. Une architecture qui ne s’impose pas mais qui résonne avec la ville, offrant aux habitants un espace de vie lumineux, adaptable et empreint de sérénité.







































